Site | Urban model
Urban model
Urban model
Concept
Plans
Elevations
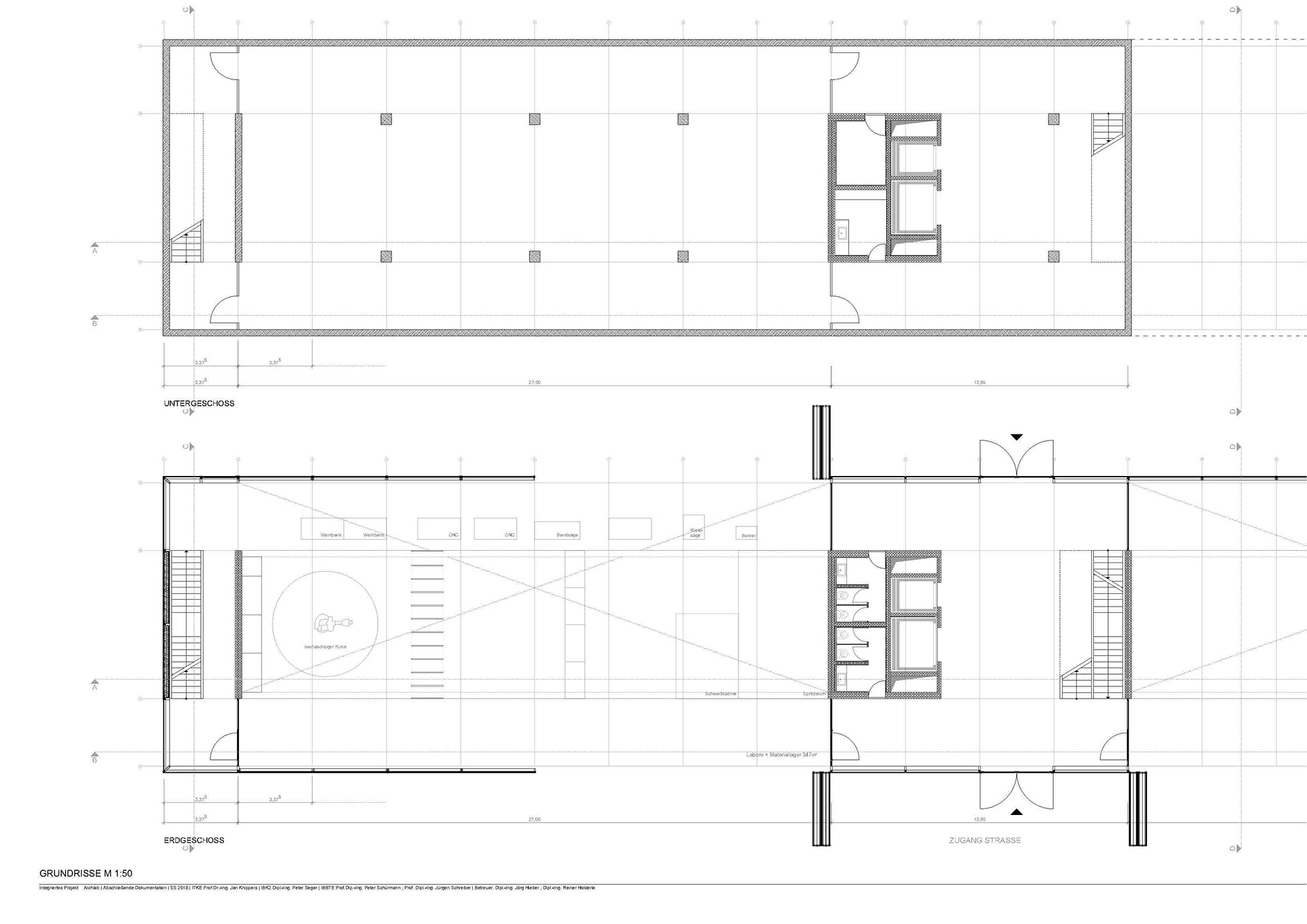
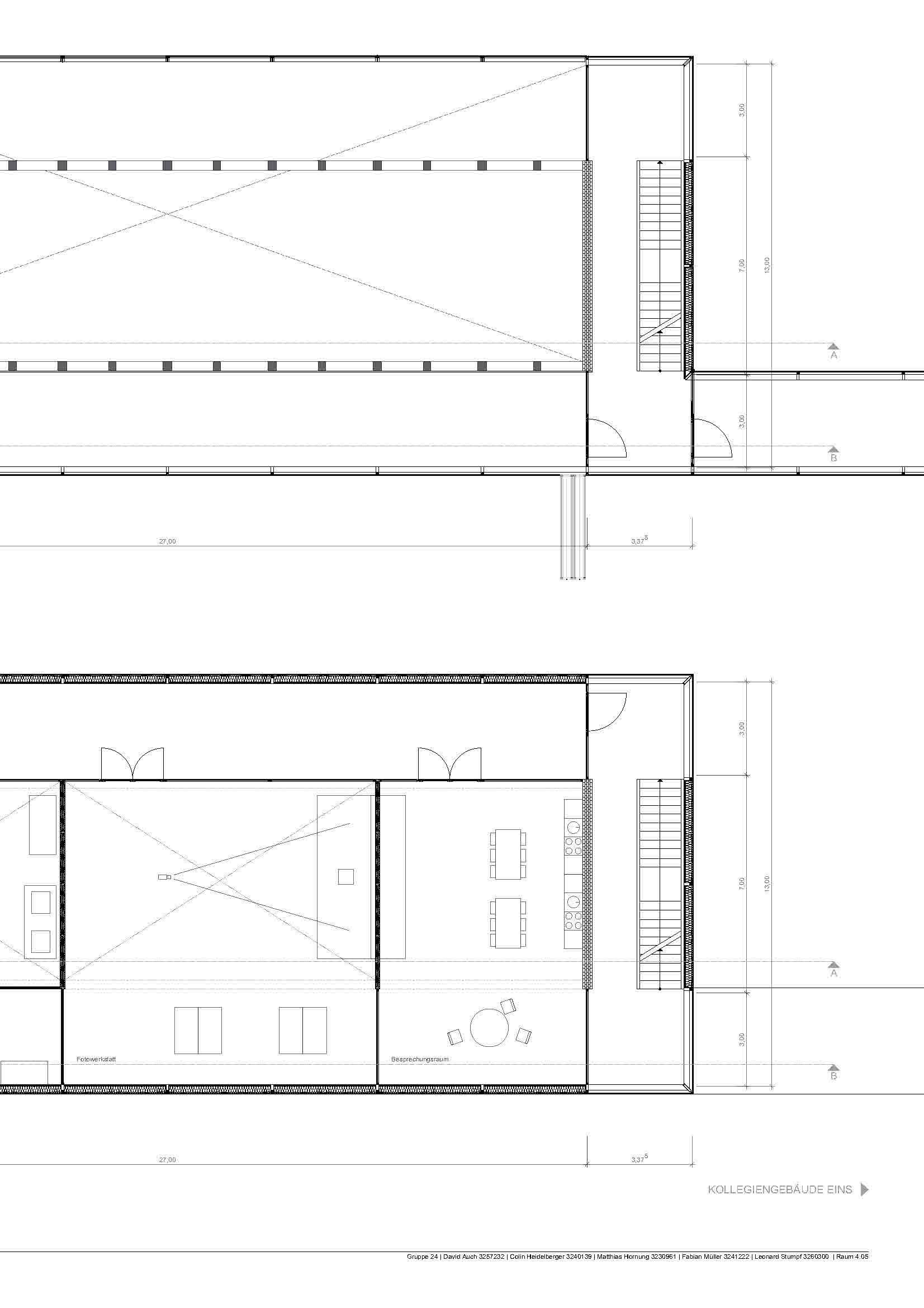
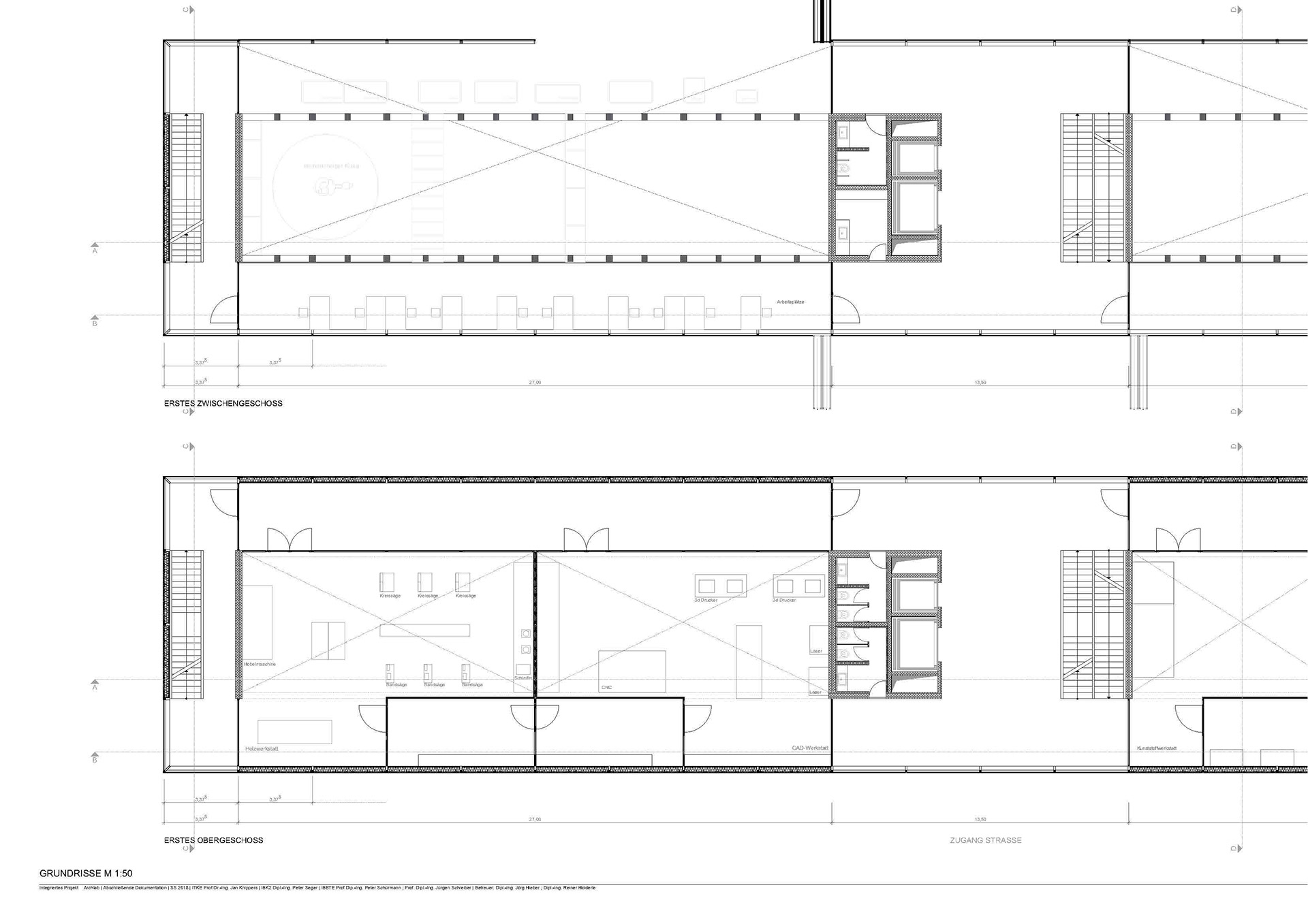
Floor plans
Sections
Building technology
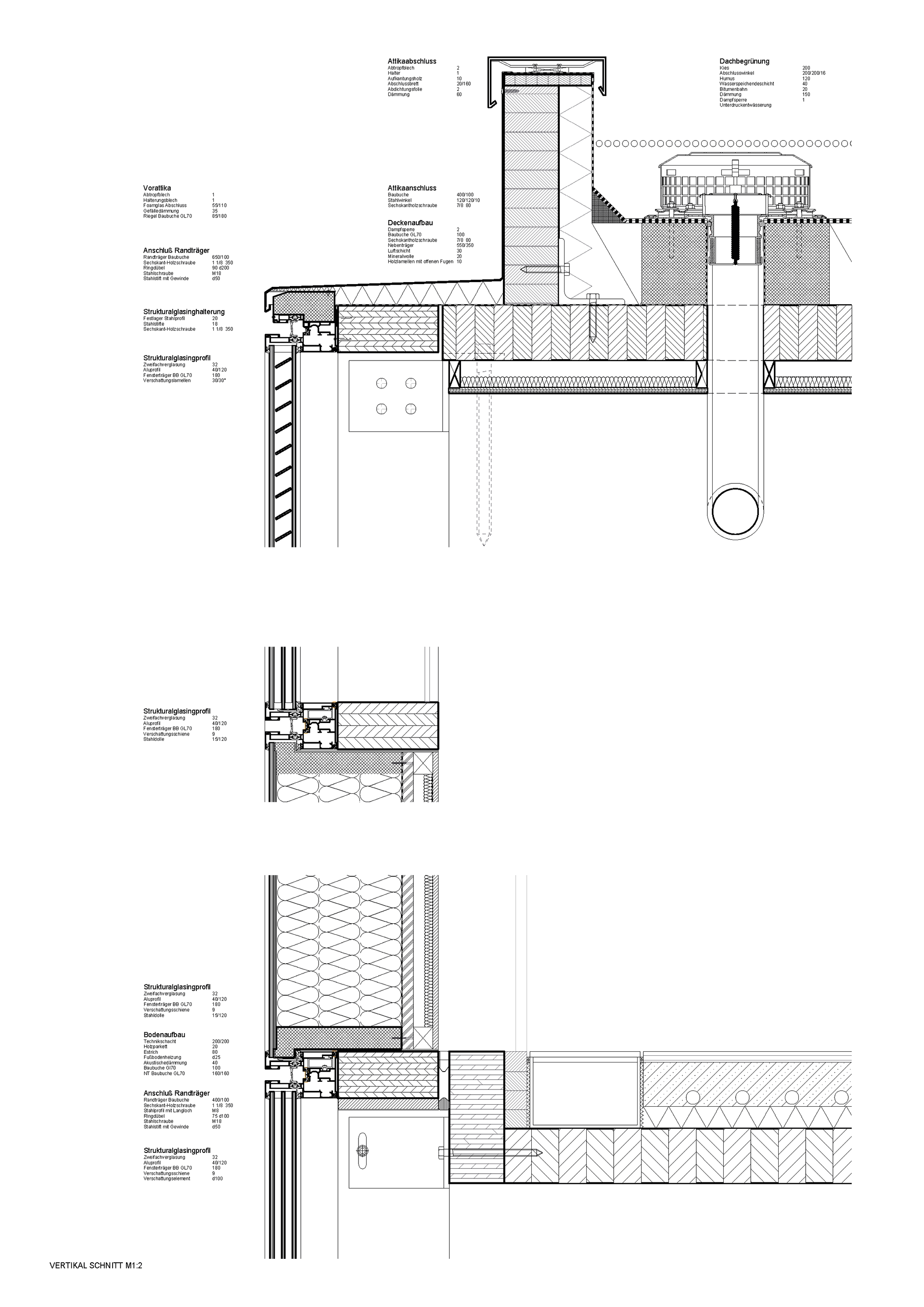
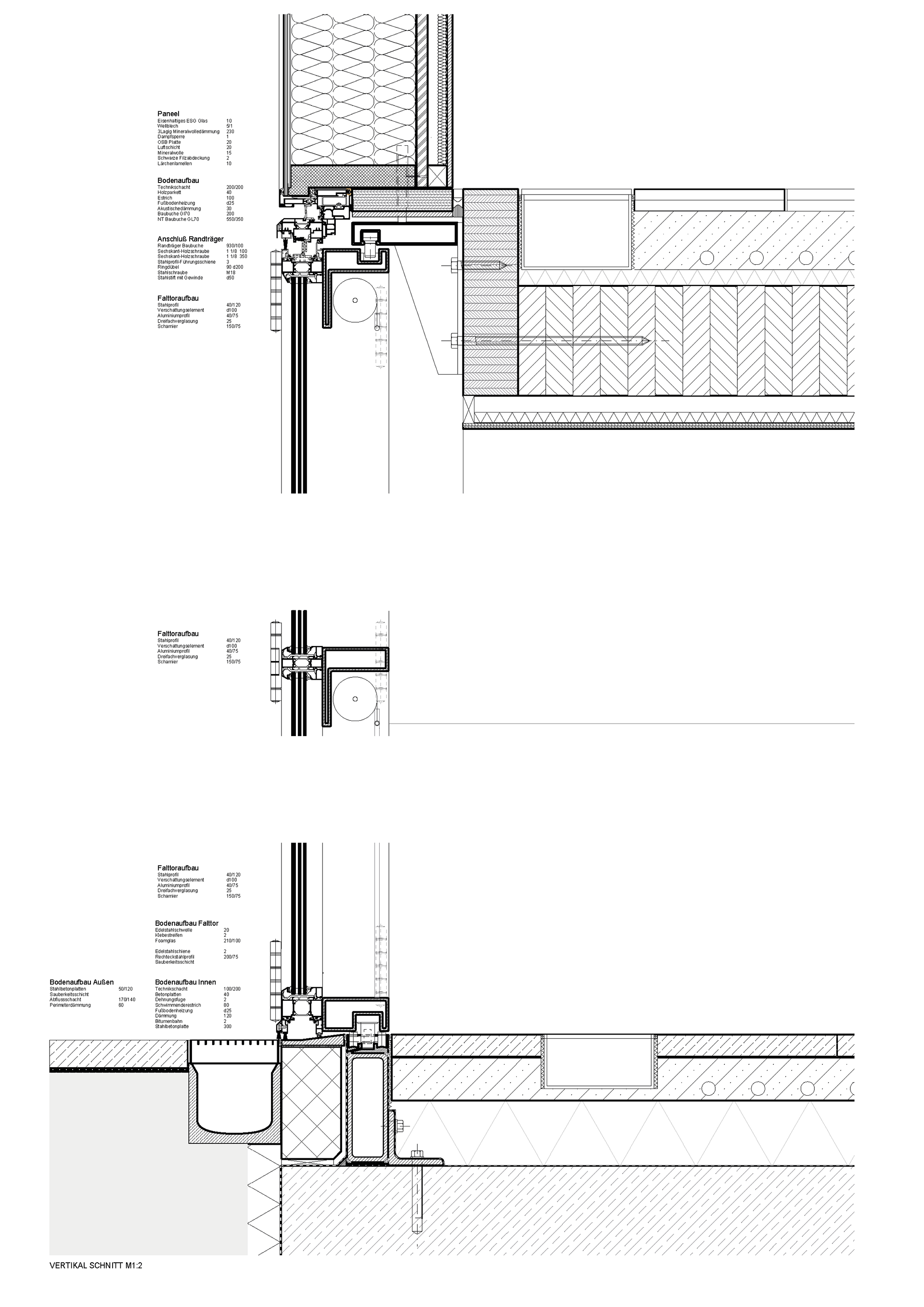
Details
Model
Back to Top